$199,900.00 on your choice of lot
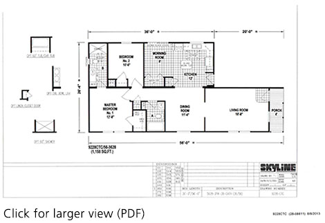
One of the home plans that Cole Brown Estates offers is the Skyline Model 9228 with one car garage. This home plan can be placed on any of our available private lots fully landscaped with underground irrigation system. This is a two bedroom, two bath homes and is designed with a living room, dining room, kitchen with Center Island and skylight. It also includes an eat in morning room with a slider which leads to the deck and private side yard.
Some key features are drywall throughout the house, delta faucets, ceramic backsplash in baths and kitchen, stainless steel kitchen sink with spray attachment, and garbage disposal. Side by side refrigerator with ice and water, gas or electric stove, microwave oven and dishwasher. This has the high efficiency Miller propane furnace and hot water heater. Handicapped height toilet in the baths and safety grab bars in the master bedroom low rise easy access shower. Also included are lever type door handles, wider hall ways as well as wider doors. The entire exterior is maintenance free from the 30 year shingles to the Georgia Pacific premium siding and the Trex decking. This home is also equipped with central air conditioning for your year round comfort. It comes with your choice of carpet and linoleum.
This home is super insulated and carries the "ENERGY STAR CERTIFICATION" which means a reduction of at least 30% of your energy consumption as verified by independant third party agencies.. our heating cost for the year were below $900.00! The taxes are incredibly LOW at $868.00 Annually. This is a great opportunity to lower your operating costs and start saving money.








